

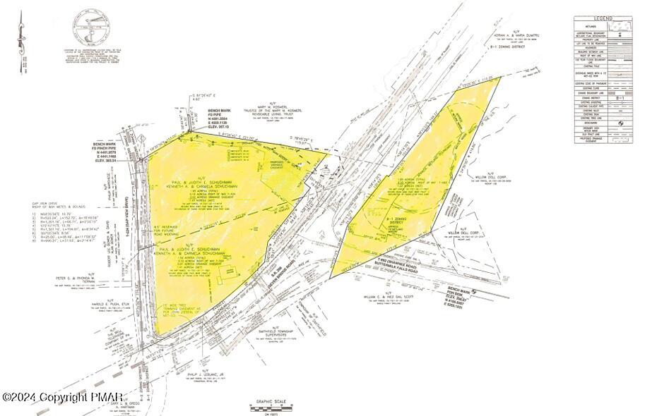
PRIME Development Opportunity in East Stroudsburg! This highly visible 5-acre commercial site is strategically located at the signalized intersection of Seven Bridges Road (Route 209) and Buttermilk Falls Road, offering unmatched access and visibility. A recent engineered sketch plan outlines a 13,300 sq.ft. retail/office plaza on 3.1 acres, with a PennDOT-Highway Occupancy Permit (HOP) at the existing traffic light—providing full traffic control and seamless ingress/egress. Positioned along a heavily traveled corridor leading to major residential neighborhoods and premier tourist destinations like the Shawnee Inn & Golf Resort and Shawnee Mountain Ski Area, the site benefits from robust traffic counts. It's also adjacent to the rapidly growing Smithfield Gateway Lifestyle Center, home to new apartments, restaurants, retail, and medical facilities. This is a rare chance to acquire a development-ready parcel with infrastructure advantages in a booming location.
| 5 months ago | Price changed to $599,000 | |
| 5 months ago | Listing updated with changes from the MLS® | |
| 6 months ago | Status changed to Active | |
| a year ago | Listing first seen on site |
Compare listings
ComparePlease enter your username or email address. You will receive a link to create a new password via email.
We use cookies to improve your experience on our site. By using our site, you consent to cookies.
Manage your cookie preferences below:
Essential cookies enable basic functions and are necessary for the proper function of the website.
Statistics cookies collect information anonymously. This information helps us understand how visitors use our website.
Marketing cookies are used to follow visitors to websites. The intention is to show ads that are relevant and engaging to the individual user.
You can find more information in our Cookie Policy and Privacy Policy.
Did you know? You can invite friends and family to your search. They can join your search, rate and discuss listings with you.